- Woonoppervlakte
- Circa 130 m²
- Inhoud
- Circa 500 m³
- Bouwjaar
- Gebouwd in 1950
- Aantal kamers
- 10 kamers (4 slaapkamers)
Aan de rand van het bruisende centrum van Heerlen mogen wij dit verrassend ruime appartement op de tweede verdieping aanbieden. Met maar liefst 130 m² woonoppervlak, een riante woonkamer, vier slaapkamers, dichte keuken en balkon over de gehele achterzijde, biedt dit appartement een unieke kans voor wie veel ruimte zoekt op een toplocatie.
De ligging is ideaal: op loopafstand van winkels, horeca, openbaar vervoer én met snelle verbindingen naar de A76 en A79. Steden als Maastricht, Eindhoven of Aken zijn daardoor uitstekend bereikbaar.
Bent u op zoek naar een groot appartement met potentie, dichtbij alle voorzieningen? Dan is Kruisstraat 14A zéker een bezichtiging waard!
Wat maakt dit appartement bijzonder?
• 130 m² woonoppervlak, verdeeld over vier slaapkamers, royale living, keuken, badkamer en apart toilet
• Balkon over volledige achterzijde (zuidwesten)
• Royale woonkamer (46 m²) met veel lichtinval en uitzicht op het toekomstige Romeins Museum
• Vier slaapkamers, waarvan twee met toegang tot het balkon
• Dichte keuken (ca. 13 m²) met potentie tot leefkeuken
• Ruime kelderberging en fietsenstalling
• Dak vernieuwd in 2024 – ideaal voor zonnepanelen of airco-installatie
• Op steenworp afstand van het centrum van Heerlen
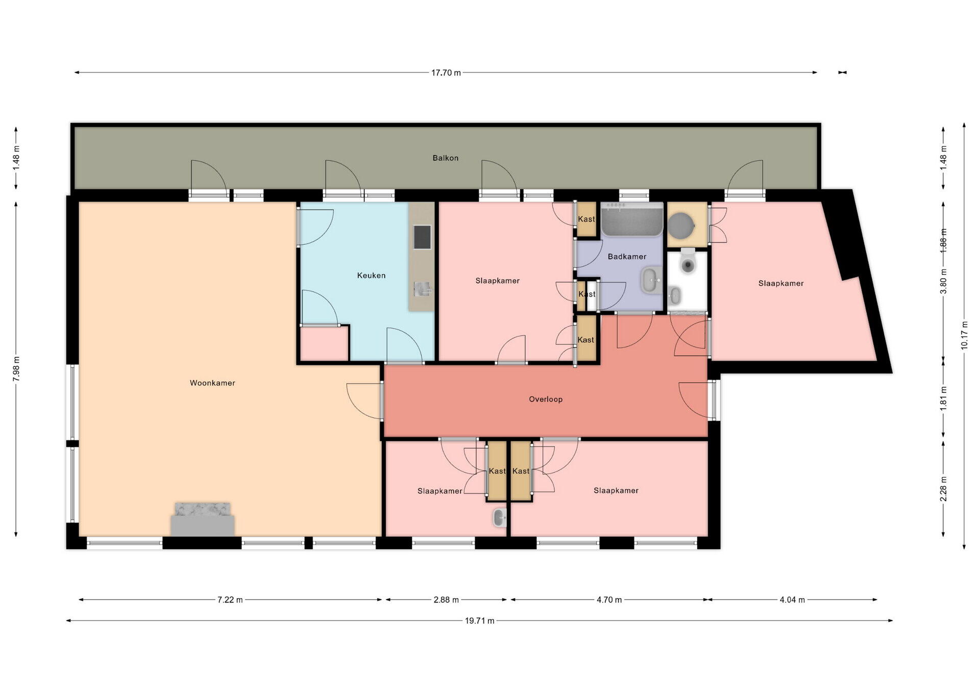
Indeling
Begane grond:
Eigen toegangsdeur tot de appartementen op de 1e en 2e verdieping. Kleine ontvangsthal met trap naar de kelder en naar boven.
2e verdieping:
Via de trap bereikt u de centrale hal met nieuwe laminaatvloer, van waaruit toegang is tot alle vertrekken.
• Vier slaapkamers, verdeeld over de voor- en achterzijde.
• Twee kamers aan de voorzijde (ca. 6 m² en 10 m²), met inbouwkasten; kleinste kamer heeft eigen wastafel.
• Twee slaapkamers aan de achterzijde (beide ca. 13 m²) met toegang tot het balkon. Één van de kamers heeft een eigen doorgang naar de badkamer.
• Badkamer (ca. 5 m²) met ligbad, wastafel en bergkast.
• Separaat toilet met fonteintje.
• Royale woonkamer (ca. 46 m²) met open haard, grote raampartijen, veel lichtinval en fraai uitzicht op de omgeving.
• Dichte keuken (ca. 13 m²) met eenvoudig keukenblok en toegang tot het balkon. De keuken biedt voldoende ruimte om te moderniseren en eventueel te betrekken bij de woonkamer.
Het balkon ligt over de volledige breedte van het appartement en is gesitueerd op het zuidwesten — hier geniet u van de middag- en avondzon.
Kelder:
Kelder is verdeeld in een gezamenlijke fietsenstalling en een ruimte met twee cv-ketels (voor beide appartementen). De ketel van dit appartement is verouderd en dient vervangen te worden. Het vernieuwde dak (2024) biedt volop mogelijkheden voor het installeren van airco’s en/of zonnepanelen – slim in het kader van duurzaamheid en comfort.
Bijzonderheden:
• Zeer ruim appartement met veel potentieel
• Balkon over de volledige achterzijde (Z/W)
• Aluminium kozijnen met dubbel glas
• CV-ketel is verouderd – vervanging nodig
• Elektrische boiler (80 liter, eigendom) voor warm water
• Dak vernieuwd in 2024 – geschikt voor zonnepanelen of airco's
• Energielabel G – upgrade mogelijk bij verduurzaming
• Niet-bewonersclausule van toepassing (appartement is altijd verhuurd geweest)
• VvE aanwezig maar niet actief – wordt in overleg met koper opgestart; afspraken over onderhoud en bijdragen worden vastgelegd bij verkoop
• Aanvaarding per direct mogelijk
Locatie
Wonen aan de Kruisstraat betekent wonen op loopafstand van het centrum van Heerlen, met alle denkbare voorzieningen letterlijk om de hoek: winkels, horeca, theater, scholen en openbaar vervoer. Via de nabijgelegen uitvalswegen rijdt u in korte tijd naar Maastricht, Eindhoven of Duitsland.
Interesse?
Voor een volledige indruk verwijzen wij u graag naar de unieke woningwebsite kruisstraat14A.nl. Wilt u dit appartement met eigen ogen bekijken? Neem dan contact op met Marcel Werrij, uw persoonlijke makelaar bij Spauwen | Werrij.
Financiële & juridische informatie:
Deze informatie is door ons met de nodige zorgvuldigheid samengesteld. Onzerzijds wordt echter geen aansprakelijkheid aanvaard voor eventuele onjuistheden of onvolledigheden.
• Waarborgsom/bankgarantie: 10% van de koopsom, te deponeren binnen twee weken na het ondertekenen van de koopovereenkomst.
• Schriftelijkheidsvereiste: Een koop komt pas tot stand na ondertekening van de koopovereenkomst door beide partijen.
• Niet-bewonersclausule van toepassing
Belangrijke informatie:
Deze informatie is met de nodige zorgvuldigheid samengesteld. Onzerzijds wordt echter geen aansprakelijkheid aanvaard voor enige onvolledigheid of onjuistheid, noch voor de gevolgen daarvan.
De waarborgsom/bankgarantie bedraagt 10% van de koopsom. Koper dient deze binnen 2 weken na het ondertekenen van de koopovereenkomst te deponeren bij de notaris.
Ter bescherming van koper en verkoper komt een koop pas tot stand nadat beide partijen de koopovereenkomst hebben ondertekend (schriftelijkheidsvereiste).
Overdracht
- Vraagprijs
- € 250.000 k.k.
- Status
- Beschikbaar
- Aanvaarding
- Direct
Bouw
- Object type
- Bovenwoning, appartement
- Soort bouw
- Bestaande bouw
- Bouwjaar
- 1950
- Soort dak
- Plat dak bedekt met bitumineuze dakbedekking
Oppervlakte en inhoud
- Woonoppervlakte
- 130 m²
- Inhoud
- 500 m³
- Externe bergruimte
- 15 m²
- Gebouwgeb. buitenruimte
- 26 m²
Indeling
- Aantal kamers
- 10 kamers (4 slaapkamers)
- Aantal badkamers
- 1 badkamer
- Badkamervoorzieningen
- Ligbad, wastafel
- Aantal woonlagen
- 2 woonlagen
Energie
- Energielabel
- G
- Energielabel registratie
- 26-08-2025
- Verwarming
- Cv-ketel
- Warm water
- Elektrische boiler eigendom
- Cv ketel
- Nefit plus gas gestookt uit 1990 (eigendom)
Buitenruimte
- Ligging
- In centrum, in woonwijk
- Balkon / dakterras
- Balkon
- Tuin
- Geen tuin
Bergruimte
- Schuur / berging
- Inpandig
Garage
- Soort garage
- Geen garage
Parkeergelegenheid
- Soort parkeergelegenheid
- Openbaar parkeren, parkeervergunningen, op afgesloten terrein
VvE checklist
- Inschrijving KvK
- Ja
- Periodieke bijdrage
- Ja
Energieverbruik in Heerlen
Energielabel deze woning
Energielabel G
Publicatie energielabel: 26-08-2025
Stroomverbruik per jaar
(Gemiddelde appartement in Heerlen)
Gasverbruik per jaar
(Gemiddelde appartement in Heerlen)
* Cijfers zijn afkomstig van het CBS en bedoeld als indicatie en kunnen verschillen voor deze woning
Indicatie hypotheeklasten
Eigen inleg:
Spaargeld / overwaarde
Rente:
Laagste 10-jaars rente
Laagste 10-jaars rente
2,88% - Woonfonds Groen Woonge... - NHG
3,1% - Argenta Groen Hypotheek... - 80%
Laagste 20-jaars rente
3,19% - Centraal Beheer Groen... - NHG
3,47% - Argenta Groen Hypothee... - 80%
Laagste 30-jaars rente
3,34% - Centraal Beheer Groen... - NHG
3,64% - Argenta Groen Hypothee... - 80%
Hypotheek:
Bruto maandlasten: € 0 p/m
Netto maandlasten: € 0 p/m
Hoe berekenen we dit?
Het rentepercentage is gebaseerd op de laagste 10 jaars vaste rente voor één hypotheekdeel. De vermelde rente (2.88% met NHG) is gecontroleerd op 08-12-2025. Deze berekening is gebaseerd op een annuïteitenhypotheek die volledig wordt afgelost, waarbij de maandlasten gedurende de gehele looptijd gelijk blijven. De werkelijke rente en netto maandlasten kunnen variëren, afhankelijk van uw persoonlijke situatie en de hypotheekverstrekker. Raadpleeg een financieel adviseur voor een nauwkeurige berekening en advies. Aan deze berekening kunnen geen rechten worden ontleend; het dient enkel als indicatie.
Documentatie
Kadastrale kaart
Leefomgeving
Plattegronden PDF
BAG uittreksel
Brochure
WOZ waarderapport
Bezichtiging
Bod uitbrengen
Waardebepaling
Zoekopdracht
Alles downloaden
Zonnegrenzen bekijken
Inwoners in Heerlen
Cijfers voor postcodegebied 6411
- Totaal aantal inwoners
- 7755 inwoners
- Mannen
- 52%
- Vrouwen
- 48%
Inwoners in Heerlen
Cijfers voor postcodegebied 6411
- tot 15 jaar
- 8%
- 15 tot 25 jaar
- 13%
- 25 tot 35 jaar
- 27%
- 45 tot 65 jaar
- 25%
- 65 en ouder
- 27%
Huishoudens in Heerlen
Cijfers voor postcodegebied 6411
- Eenpersoons zonder kinderen
- 64%
- Meerpersoons zonder kinderen
- 23%
- Huishoudens zonder kinderen
- 87%
Huishoudens in Heerlen
Cijfers voor postcodegebied 6411
- Huishoudens met één kind
- 5%
- Huishoudens met meerdere kinderen
- 8%
- Huishoudens met kinderen
- 13%
Woningen in Heerlen
Cijfers voor postcodegebied 6411
- Woningen voor 1945
- 32%
- Woningen tussen 1945 en 1965
- 23%
- Woningen tussen 1965 en 1975
- 3%
- Woningen tussen 1975 en 1985
- 17%
- Woningen tussen 1985 en 1995
- 11%
Woningen in Heerlen
Cijfers voor postcodegebied 6411
- Woningen tussen 1995 en 2005
- 10%
- Woningen tussen 2005 en 2015
- 5%
- Woningen na 2015
- 1%
- Huurwoningen
- 60%
- Koopwoningen
- 30%
Overige in Heerlen
Cijfers voor postcodegebied 6411
- Gemiddelde WOZ waarde
- € 144.000,-
- Personen onder de 65 met uitkering
- 14%
Overige in Heerlen
Cijfers voor postcodegebied 6411
- Adressen per km²
- 2528
- Stedelijkheid (schaal 1 op 5)
- 100%
Korte feiten over Heerlen
Heerlen (Limburgs: plaatselijk Heële) is een stad en gemeente in het zuidoosten van de Nederlandse provincie Limburg. Op 1 januari 2024 had Heerlen 87.498 inwoners (CBS). Heerlen is daarmee de grootste gemeente in de Oostelijke Mijnstreek, en de vierde van Limburg, na Maastricht, Venlo en Sittard-Geleen.
Spauwen | Werrij
Indien u vragen heeft of u wilt een bezichtiging inplannen, dan kunt u gebruik maken van het formulier hiernaast. Er zal daarna op korte termijn contact met u worden opgenomen.
Contact opnemen
Spauwen | Werrij
Spauwen | Werrij is actief in de vastgoedsector en heeft haar hoofdkantoor in Heerlen. Onze expertise ligt in het taxeren, bemiddelen en adviseren binnen commercieel vastgoed, maar ook in de aan- en verkoopbemiddeling van woningen staan wij graag voor u klaar.
Onze specialisten begeleiden deze activiteiten, waarbij iedere sector zijn eigen specifieke werkwijze kent. Commercieel vastgoed vraagt immers om een andere benadering dan particulier onroerend goed. Wat echter altijd centraal staat, is de kwaliteit en toewijding waarmee wij werken, zodat wij het beste resultaat voor u kunnen realiseren.
Door ons lidmaatschap van NVM (Business), het gebruik van moderne taxatiemethoden (TMI), onze registratie bij het NRVT en het naleven van de hoogste ethische normen (RICS), mogen onze klanten rekenen op een dienstverlening van de hoogste kwaliteit.
Spauwen | Werrij biedt een gemotiveerd team met veel ervaring in diverse vastgoedsectoren en een onafhankelijke kijk op de markt. We combineren ambitie met betrokkenheid, en werken met creativiteit en ondernemerschap om alles tot in de puntjes te verzorgen. Kortom, wij zijn uw betrouwbare partner in vastgoed!
Nieuwste reviews
-
Haghenstraat 17 A
Marcel is een geweldige makelaar die écht oog heeft voor wat jij als verkoper nodig hebt! Extreem prettig in de omgang en heel goed te berei...
-
Aarweg 3
Zeer prettig samenwerking.Goed advies en begeleiding!Gevoelsmatig heeft het wat lang geduurd, maar dat is inherent aan de huidige huizenmark...
-
Wolterstraat 16
Deskundige makelaar die de lokale markt kent als geen ander. Communicatie verliep soepel en aan alle verwachtingen werd voldaan.